Block 126

https://omatalo.sprintit.fi/web/image/product.template/6019/image_1920?unique=ed920a6

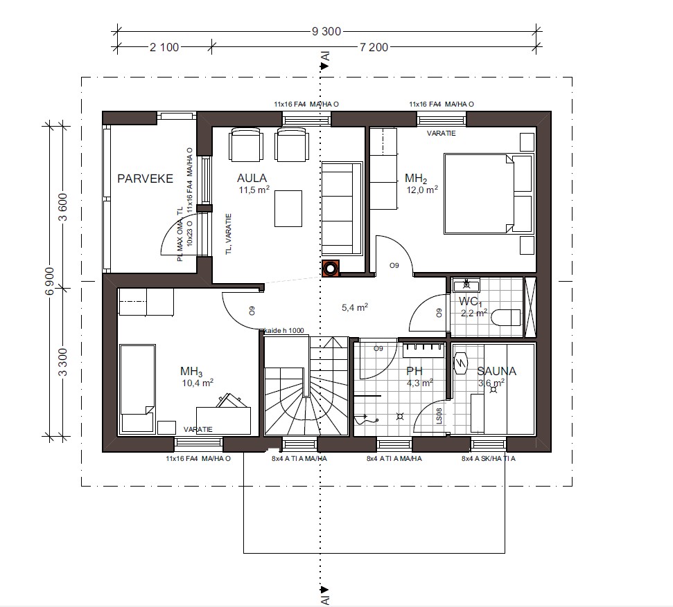
Block 126 on kompakti kaksikerrostalo, joka sopii pienemmällekin tontille. Neliöt ovat käytetty tehokkaasti; toimivuutta ja mukavuutta riittää pienen perheen tarpeisiin. Suojaisa, leveä sisääntulokuisti johdattaa eteiseen, jonka yhteydessä ovat luontevasti kylpyhuone/WC, kodinhoitohuone sekä portaikon takana makuuhuone. Valoisasta, yhtenäisestä olohuone-keittiötilasta pääsee mukavasti kulmaterassille. Saunaosasto sekä kaksi muuta makuuhuonetta sijaitsevat yläkerrassa, jossa on myös viihtyisä aulatila.

  • Liczba kondygnacji
  • Powierzchnia brutto
  • Powierzchnia użytkowa (m²)
  • Sypialnie
  • Powierzchnia użytkowa

Ta kombinacja nie istnieje.

Liczba kondygnacji: 2
Powierzchnia brutto: 126
Powierzchnia użytkowa (m²): 108
Sypialnie: 3
Powierzchnia użytkowa: 100-150